Baiwei Building | Original Space

Save
Baiwei Building | Original Space

Information

  • Completion year: 2023
  • Gross Built up Area: 690㎡
  • Project Location: Taizhou City, Zhejiang Province
  • Country: China
  • Design Team: Ding Zhengrui, Gao Zhen, Yu Shujing, Wang Zijian
  • Clients: Baiwei Building
  • Contractors: Taizhou Avenue Construction Engineering Co., LTD
  • Photo Credits: Ingallery
  • Others: Project Creator: Jiang Yusheng
More Info Less Info

Excerpt: Baiwei Building, an interior design project by Original Space, aims to evoke an emotional connection with space through contemporary design. The space features simple block forms and curved elements, with crystal bricks and grilles providing functional divisions and privacy. Each area is distinguished by materials like wood, woven fabrics, micro-cement, and glass bricks, creating unique textures and moods.

Project Description

Baiwei Building | Original Space
© Ingallery

[Text as submitted by architect] This is the second “Baiwei House” designed by the firm, continuing the design style of the past while also marking an innovative breakthrough. The designers aim to evoke an emotional connection with the space through contemporary design vocabulary, presenting a spatial conception that reflects the essence of Oriental cuisine.

Baiwei Building | Original Space
© Ingallery
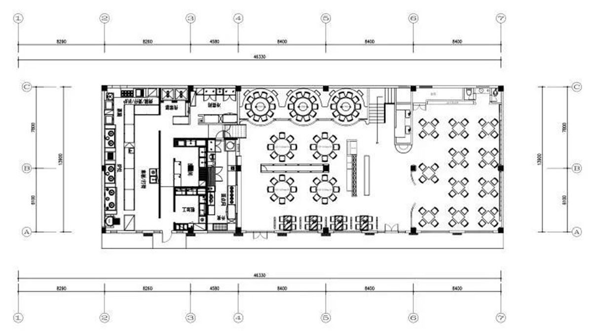
Baiwei Building | Original Space
Floor Plan © Original Space
Baiwei Building | Original Space
© Ingallery

Following current trends, the firm designs different ceilings in each area, ensuring that the restaurant’s interior remains dynamic, creating more possibilities and visual tension that enhance the dining atmosphere. The starry sky ceiling design, in particular, adds warmth to the dining experience.

Baiwei Building | Original Space
© Ingallery
Baiwei Building | Original Space
© Ingallery

The spaces are defined by simple block forms, with curved interleavings creating a sense of ordered disorder. The use of crystal bricks and grilles not only serves to divide the space functionally but also guides movement and enhances the privacy of diners.

Baiwei Building | Original Space
© Ingallery
Baiwei Building | Original Space
© Ingallery

Building on the simple materials and colors of the previous store, the design extends the theme, aiming to return to a sense of pure emotion. Different spaces are adorned with various materials—a mix of wood and woven fabrics, the contrast of micro-cement and glass bricks—each creating a unique texture and mood within the space.

Baiwei Building | Original Space
© Ingallery
Baiwei Building | Original Space
© Ingallery
Baiwei Building | Original Space
© Ingallery

While the functional areas of the restaurant are designed for optimal structure, the choice of accessories introduces a rhythm that deepens the sensory experience of the space. The decor in the restaurant’s private areas, from decorative paintings to greenery, adds a touch of sophistication. The retro-style tables and chairs, along with a simple yet elegant layout, ensure that the atmosphere does not distract, making private spaces more relaxed and comfortable for emotional exchanges.

Baiwei Building | Original Space
© Ingallery

The spatial expression goes beyond the visual; the firm intends for the texture of the design to be fully experienced through use, leaving a lasting impression of human warmth.

Leave a Reply