Bund Finance Centre | Foster + Partners + Heatherwick Studio

Save
Bund Finance Centre | Foster + Partners + Heatherwick Studio

Information

  • Completion year: 2017
  • Gross Built up Area: 420000 m²
  • Project Location: Shanghai
  • Country: China
  • Photo Credits: Laurian Ghinitoiu, Foster + Partners and Heatherwick Studio
More Info Less Info

Excerpt: Bund Finance Centre by Foster + Partners and Heatherwick Studio is a major mixed-use development designed to revitalize Shanghai’s waterfront. The masterplan connects the old town and the new financial district, defining the ‘end point’ of the famous street. At the heart of the scheme is a flexible arts and cultural centre, combining exhibition and events halls with a performance venue inspired by traditional Chinese theatre stages.

Project Description

Bund Finance Centre | Foster + Partners + Heatherwick Studio
© Foster + Partners and Heatherwick Studio

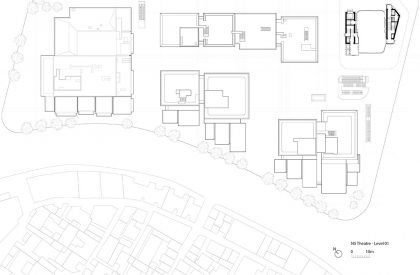
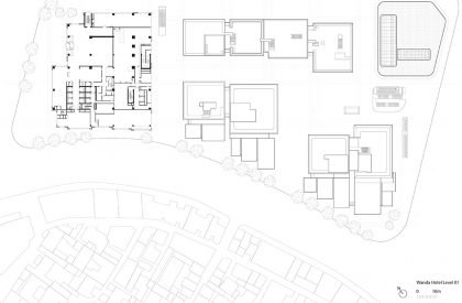
[Text as submitted by architect] The Bund Finance Centre – a major new mixed-use development jointly designed by Foster + Partners and Heatherwick Studio – is set to revitalise Shanghai’s waterfront. Occupying a prominent site on the Bund, the buildings define the ‘end point’ to Shanghai’s most famous street. The 420,000-square metre masterplan is highly permeable for pedestrians, with the design conceived as a point of connection between the old town and the new financial district.

Bund Finance Centre | Foster + Partners + Heatherwick Studio
Masterplan © Foster + Partners + Heatherwick Studio
Bund Finance Centre | Foster + Partners + Heatherwick Studio
© Laurian Ghinitoiu

Inspired by this urban context, two 180-metre landmark towers are placed in the south of the site, while the buildings facing the waterfront are staggered in height and relate in scale and rhythm to the grand nineteenth-century landmarks along the Bund. At the heart of the scheme is a flexible arts and cultural centre, home to the Fosun Foundation, which combines exhibition and events halls with a performance venue, inspired by the open stages of traditional Chinese theatres. 

Bund Finance Centre | Foster + Partners + Heatherwick Studio
© Laurian Ghinitoiu

Gerard Evenden, Head of Studio and Senior Executive Partner, Foster + Partners commented: “The Bund Finance Centre creates a pivotal connection between the old town and the new financial district. Developing the massing strategy for the buildings was an interesting challenge, in terms of relating to the context of old and new architecture, reflecting the scale of the waterfront and the character of the historic quarters.”

Bund Finance Centre | Foster + Partners + Heatherwick Studio
Axonometric © Foster + Partners + Heatherwick Studio
Bund Finance Centre | Foster + Partners + Heatherwick Studio
© Laurian Ghinitoiu

Thomas Heatherwick, Founder of Heatherwick Studio, said: “The opportunity to make something new in this prominent location that had formerly been the river gateway to Shanghai’s Old Town was extraordinary. With a project that would create 420,000 square metres of space, we felt a great duty to look for fresh ways to connect with China’s amazing built heritage and make a meaningful public place for thousands of people to work and come together. Influenced by the materiality and scale of the existing historic buildings along the Bund we have built a series of simple office, shopping and cultural buildings that combine high performance glazing systems with hand carved stone building frames. These structures in turn surround new public spaces and speak to the heritage of the historical Bund buildings.”

Bund Finance Centre | Foster + Partners + Heatherwick Studio
Elevation © Foster + Partners + Heatherwick Studio
Bund Finance Centre | Foster + Partners + Heatherwick Studio
© Laurian Ghinitoiu

The 420,000-square-metre development of eight buildings combines premium offices with a boutique hotel, a cultural centre and a wide variety of luxury retail spaces, all arranged around a landscaped public plaza. The retail spaces are vertically layered with boutiques, concept stores for international brands, a luxury shopping mall and restaurants. A palette of crafted stone and bronze details gives the buildings a jewel-like quality. The edges of each volume are made of richly textured, hand-crafted granite and become slimmer as they rise, giving the impression of solidity at the base and transparency at the top.

Bund Finance Centre | Foster + Partners + Heatherwick Studio
© Laurian Ghinitoiu
Bund Finance Centre | Foster + Partners + Heatherwick Studio
© Laurian Ghinitoiu
Bund Finance Centre | Foster + Partners + Heatherwick Studio
Elevation © Foster + Partners + Heatherwick Studio
Bund Finance Centre | Foster + Partners + Heatherwick Studio
© Foster + Partners + Heatherwick Studio

The social focus of the scheme is the cultural centre, conceived as a platform for international arts and cultural exchange, as well as a place for brand events, product launches and corporate functions. The building is encircled by a moving veil, which adapts to the changing use of the building and reveals the stage on the balcony and views towards Pudong. Developed in collaboration with local engineers Tongji University, the façade is a veil organised along three tracks and made up of layers of 675 individual magnesium alloy ‘tassels’ – a reference to the traditional Chinese bridal headdress. The

tassels range in length from around 2 metres to 16 metres so that as each track independently moves, the veil rotates with the tassels overlapping and producing different visual effects and levels of opacity.

Bund Finance Centre | Foster + Partners + Heatherwick Studio
© Laurian Ghinitoiu
Bund Finance Centre | Foster + Partners + Heatherwick Studio
© Laurian Ghinitoiu

“The cultural centre is an optimum blend of craft and technology. It is inspired by traditional Chinese weaving, while incorporating the latest cutting-edge technology that helps withstand earthquakes, typhoons and severe weather. Its unique form provides a memorable and extraordinary experience for visitors, while the illuminated stage and the motion of the moving veil creates a unique backdrop to the theatre of city life,” added Evenden.

Leave a Reply