Excerpt: House of Parallel Walls by Aakar Group of Consultancy is a magnificent residence that seamlessly blends elegance and understated splendor. Named after its parallel walls cutting through terraces, the residence pays homage to traditional Muslim family features with a modern twist. Its artful entrance and exquisite details showcase the enduring appeal of architectural excellence and its profound impact on the human spirit.
Project Description

[Text as submitted by architect] Nestled within the confines of a petite 40′ x 60′ plot lies a gem of architectural brilliance—a bungalow that serves as the cherished abode for a nuclear family of four, comprising the esteemed doctor couple, their son, and daughter. This residence, crafted upon a landscape with minimal footprint and designed with Vastu principles in mind, is a masterpiece that seamlessly blends elegance with understated splendour.

Approaching the entrance, one is greeted by the towering 10′ tall compound wall adorned with lush creepers, imbuing the surroundings with an aura of tranquillity and welcome. The lower ground floor, a realm of functionality and versatility, boasts parking for two cars, a servant’s quarter, and a multifaceted playroom that transforms into a grand hall for celebratory occasions.



Ascend the grandiose staircase to the upper ground floor, where elegance reigns supreme. A veranda sitout, bathed in natural light and resplendent with panoramic views of the greenery, beckons one to pause and savor the moment. The landscape, adorned by a majestic chafa tree, sets a serene backdrop for the entrance lobby. Within, a foyer of unparalleled grandeur leads to the heart of the home—the living room, enhanced with a magnificent corner window that offers a tantalizing glimpse of the verdant outdoors.


Every facet of this abode exudes an air of luxury and sophistication. The step-up dining area and well- equipped kitchen are complemented by a utility room, store, powder toilet, guest bedroom, and master bedroom—all designed with functionality and aesthetics in mind. From the opulent Onice Aria Beige tile flooring that lends a serene aura to the entire residence to the bespoke M.S. staircase with its wooden steps and distinctive yellow railing, no expense has been spared in designing a space of unparalleled grace and refinement.



The peacock blue accent wall behind the staircase serves as a captivating contrast, adding depth and character to the interior. A circular puncture in the staircase wall, reminiscent of the voids in the elevation walls, adds a touch of artistic flair. The skylight above the staircase brings in natural light, further inflating the ambiance. The kitchen, trolleys, and overhead units are done in yellow to create a sense of harmony and repetition. Custom-made ceiling light fixtures and a cantilever dining table add a touch of distinction to the space.



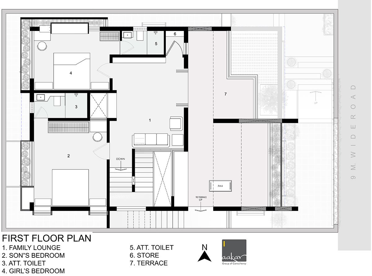
Venture further into this harbour of equanimity, and you will discover a family lounge on the first floor, adorned with an attached terrace that serves as a haven for relaxation and contemplation. Here, beneath a pergola of terracotta tiles, one can bask in the gentle caress of the sun’s rays, while the ever-changing shadows dance in silent reverie. The wooden flooring of the daughter’s and son’s bedrooms exudes warmth and coziness, while natural skylights illuminate the space with an ethereal glow, enhancing the sense of space and comfort.


The residence gains its name from the parallel walls that gracefully cut through the terraces, creating a striking visual feature. These walls, adorned with circular and semi-circular cutouts, pay homage to traditional Muslim family features with a modern twist. The exterior of the residence is painted in shades of grey texture paint, while the gate, painted in yellow, adds a pop of colour and serves as a cheerful welcome to visitors.

In the embrace of this enchanting bungalow, one discovers a sanctuary where tradition and innovation converge in perfect euphony—a retreat where every corner tells a story of timeless beauty. From its artful entrance to its exquisite details, this residence is a testament to the enduring allure of architectural excellence and the profound impact it has on the human spirit. Truly, in the hallowed halls of this dwelling, one finds not just an adobe, but a sanctuary—a sanctuary of architectural finesse and unwavering vision of its distinguished owners.