Island Retreat | Coates Design: Architecture + Interiors – Seattle Architects

Save
Island Retreat | Coates Design: Architecture + Interiors – Seattle Architects

Information

  • Completion year: 2015
  • Gross Built up Area: 241 sqm
  • Project Location: Washington
  • Country: USA
  • Lead Architects/Designer: Matthew Coates, AIA, LEED AP, NCARB
  • Design Team: Emily Banks
  • Engineering: Browne Wheeler Engineers Inc.
  • Structural Consultants: Quantum Consulting Engineers
  • Contractors: Fairbank Construction
  • Project Manager: Bob Miller-Rhees
  • Photo Credits: Lara Swimmer
More Info Less Info

Excerpt: Island Retreat, designed by Coates Design: Architecture + Interiors, has Pacific Northwest architectural style, with wood floors and expansive two-story glazing allowing a view of the mountains from the upper balcony. The site topography was maintained to minimize earth disturbance on the steep slope. The new homes were built on the existing footprint. Each home includes a material palette of stone, concrete, wood, and metal, complimenting one another while defining the subtle differences in the siblings’ tastes.

Project Description

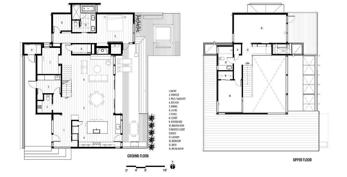
[Text as submitted by architect] This hillside retreat is 2600 square feet with two bedrooms, fit for a small family to to enjoy an island getaway. The island retreat is done in the Pacific Northwest architectural style, with wood floors and an expansive two-story glazing allowing a view of the mountains from the upper balcony. Cantilevered wood “floating” stair treads lead to a library overlooking the double-height living and dining space below. Beach glass and nautical light fixtures were chosen for the bathrooms to bring a coastal feel indoors.

Island Retreat | Coates Design: Architecture + Interiors - Seattle Architects
© Coates Design: Architecture + Interiors – Seattle Architects
Island Retreat | Coates Design: Architecture + Interiors - Seattle Architects
© Coates Design: Architecture + Interiors – Seattle Architects
Island Retreat | Coates Design: Architecture + Interiors - Seattle Architects
© Coates Design: Architecture + Interiors – Seattle Architects

A stone mass wall with corten panels provides the focal point of the living space, housing a fireplace and media center while providing separation from the master suite. The house is connected to a wooded pathway that leads to the beach, creating a natural transition from the home to the outdoors.

Architectural Features:

  • Open-concept living, kitchen, and dining area
  • Nature-inspired interior design elements
Island Retreat | Coates Design: Architecture + Interiors - Seattle Architects
© Lara Swimmer
Island Retreat | Coates Design: Architecture + Interiors - Seattle Architects
© Lara Swimmer
Island Retreat | Coates Design: Architecture + Interiors - Seattle Architects
© Lara Swimmer

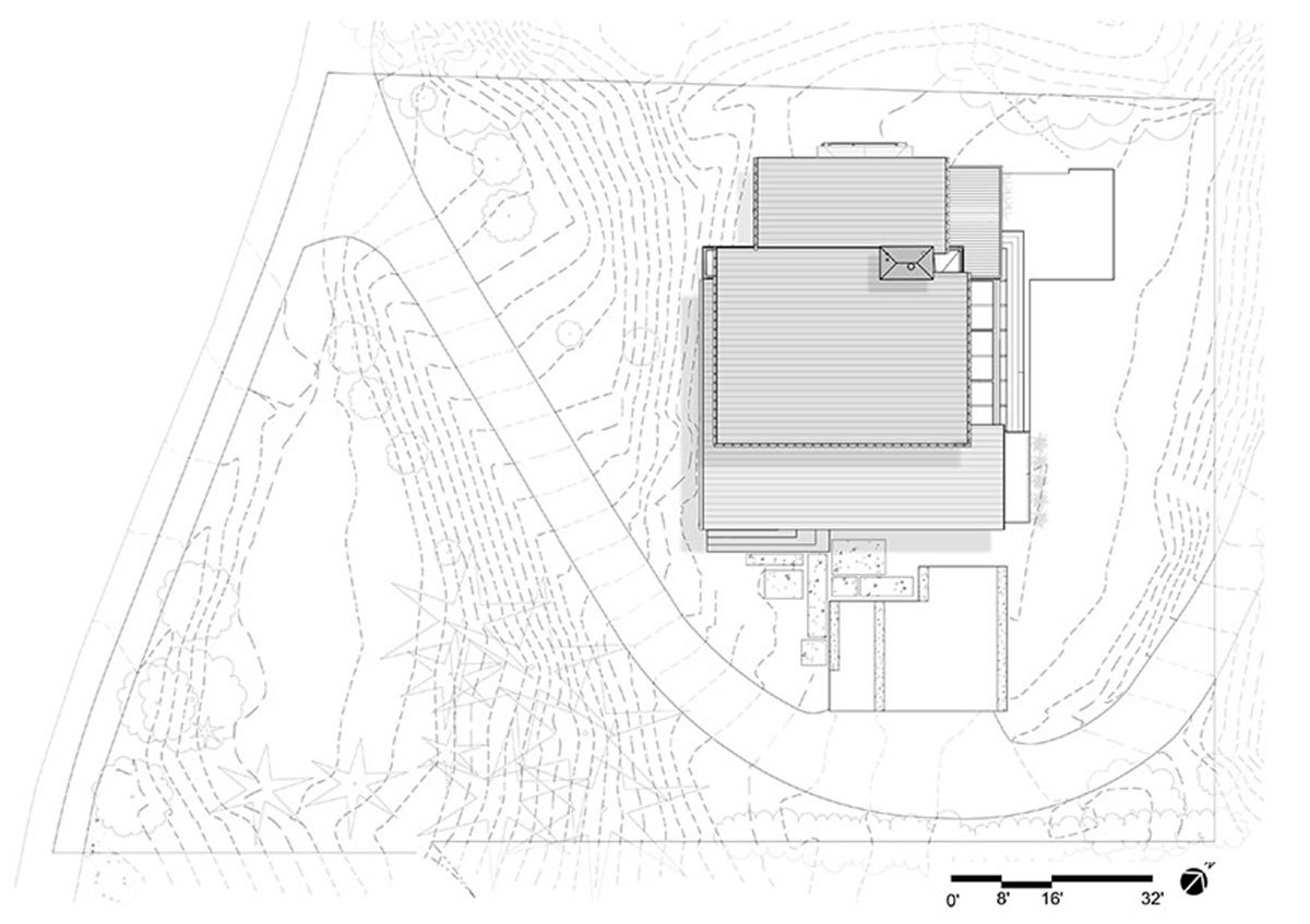
The hillside waterfront property has been in the clients’ family since the 1950s and contains two parcels that once had a mid-century home and a 1920s cabin. The two siblings that had acquired these wanted the two homes redeveloped in conjunction with one another. They hoped they would be able to use the houses, which are just 50 feet apart, as a retreat for big family gatherings to ensure their families stayed close.

Island Retreat | Coates Design: Architecture + Interiors - Seattle Architects
© Lara Swimmer
Island Retreat | Coates Design: Architecture + Interiors - Seattle Architects
© Lara Swimmer
Island Retreat | Coates Design: Architecture + Interiors - Seattle Architects
© Lara Swimmer

The existing site topography was maintained to minimize earth disturbance on the steep slope and the new homes were built on the existing footprint. Each home includes a material palette of stone, concrete, wood, and metal, complimenting one another while defining the subtle differences in the siblings’ personal tastes. Both utilize a stone mass wall to delineate the private spaces from the shared central public spaces. The site is accessed by a communal drive shared between the two retreat homes, providing a unique overlook of the cantilevered green roof.

Island Retreat | Coates Design: Architecture + Interiors - Seattle Architects
© Lara Swimmer
Island Retreat | Coates Design: Architecture + Interiors - Seattle Architects
© Lara Swimmer
Island Retreat | Coates Design: Architecture + Interiors - Seattle Architects
© Lara Swimmer

Leave a Reply