Excerpt: Terra Kota House by Terra Firma Architects is designed to accommodate various spaces and lifestyles, responding to the climate and inhabitants’ needs. Built on a frame structure, it consists of 9 squares that negotiate with the surrounding grids. The built form is a cuboid carved and projected out, responding to internal functions. However, entering the house twists the axis of orienting diagonally, contradicting the overall massing of the cuboid.
Project Description

[Text as submitted by architect] The house, situated in the outskirts of west Ahmedabad, is surrounded by a canopy of the Peela Gulmohar trees. It has been designed for a family of four where the parents would spend their retired life while the children would be engrossed in developing their careers. Fundamentally, it had to respond to the needs of two generations where one can come together to enjoy each other’s company but also respect their time alone.

Keeping in mind such a brief the architecture responds to a variety of scales of spaces where one can unwind. This house thus responds to the climate and the life-style of the inhabitants. Use of kota stone and terrazzo for flooring, maximum wooden windows and inbuilt seatings was to keep the home timeless and user friendly.


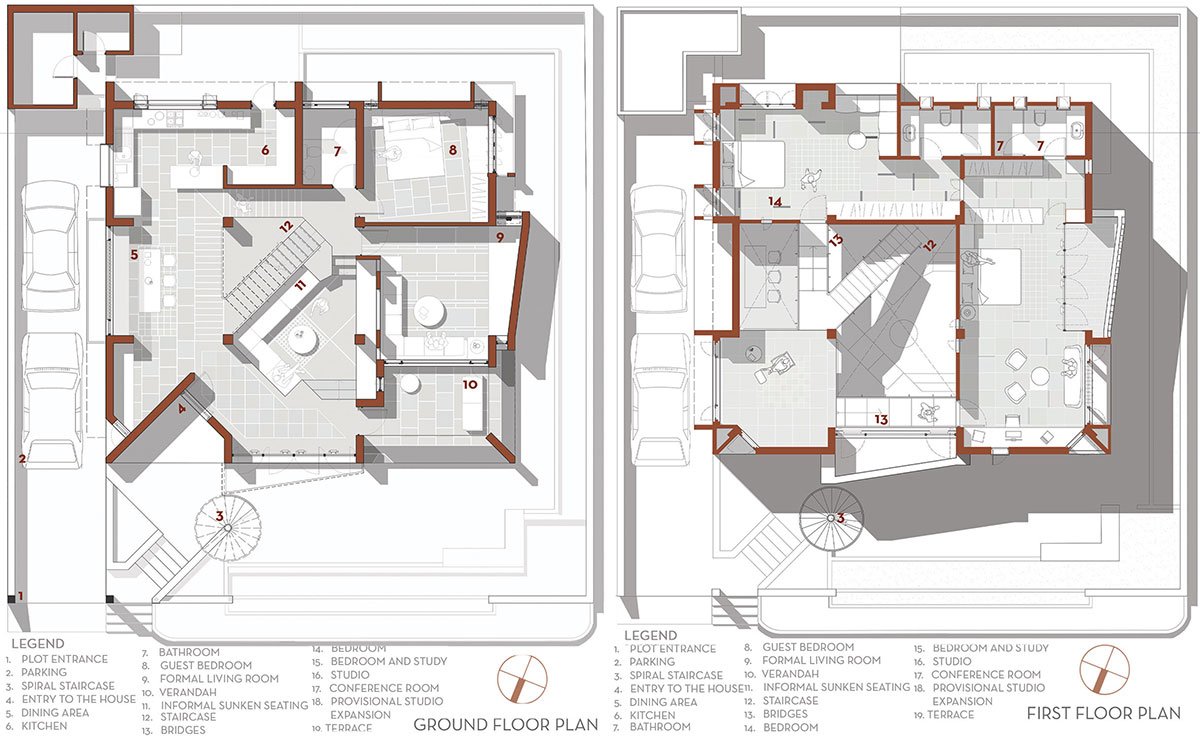
Built on a frame structure, the house consists of 9 squares that hold and negotiate the program with the surrounding grids. The built form is essentially a cuboid carved in and projected out in response to the functions inside. However, when one enters the built form, the axis of orienting is twisted diagonally by the entry which is in contradiction to the overall massing of the cuboid.



Further, as one progresses, the paths diverge into two of which one moves towards the kitchen and the other to the sunken seating in the centre of the house. This central seating is a double volume which visually connects the entire house and brings it together. It has been designed to be the most social and interactive space of the house. The staircase is a central element here which wraps around the sunk seating and stretches from one corner to the other in the form of bridges. The first floor consists of two bedrooms on the south and west side that overlook the double volume internally, thus creating a very visually connected space.


The functions are distributed based on the use of that space and its microclimate. For instance, The west and south sides house the bedrooms that are predominantly used during early mornings and nights. So it is largely undisturbed by the day’s heat. The dining and living spaces that are going to be used throughout the day remain cool because of north and east orientation. The studio space on the second floor is above the bedrooms, thus creating a shaded terrace for most part of the day.



Light and shadow form an integral part of the spaces inside the house. The skylights, northern facades and all the openings otherwise, have been designed in a manner such that least amount of sunlight penetrates inside the house to keep it cooler while maintaining enough daylight. North facade has maximum openings while other facades and openings have been through with respect to the lighting conditions.